据统计,每年落入擦车族手中的擦车费就有三个亿。根据调查,目前市场上许多汽车美容店处于无专业正规培训、无专业名牌产品、无专业机械设备、无服务质量保证的四无状况。但随着汽车美容护理市场的不断规范和人们消费意识的提高,伪劣产品将无处立足,无专业服务的汽车美容店若不改变现状也将会被淘汰。如何在汽车美容护理业立足、发展并壮大,已成为每一个业内人士所关注的问题。......
2025-09-30
汽车外部清洗设备,按使用的清洗剂可分冷水、热水、蒸气和化学清洗剂三种;按设备安置方式来分,有手工洗车工具、小型移动式清洗机和半自动及大型电脑控制固定式等;按水流方向划分,有仰洗、俯洗、侧洗三种;按水的压力分,有低压和高压清洗两种。在实际应用中,它们难以自成体系,往往是综合交互的结合体。
在此只介绍大、中型汽车美容护理企业所使用的固定式清洗装置和常用工具及养护用品。
1.全自动式机洗
常用设备为隧道式与龙门式洗车机。洗车机一般由主机房系统、泵房系统、水处理系统三个部分组成,根据功能不同,主机房的配置也不同,实现的功能也不同。这类洗车机适用于大型专业洗车厂,并不是专业汽车美容使用的规定设备。由于此类设备是全自动形式的,车辆的整个清洗过程由程序控制完成,不能针对车辆重点或特殊部位进行有针对性的清洗工作,同时还会因为毛刷的污染造成车漆划伤,所以不推荐专业汽车美容店使用该类设备作为美容程序。
自动洗车设备主要用于大型的专营洗车场所,具有投资大、效率高,总耗材成本低、省工时、上档次、收费高的特点。但由于不是专业汽车美容使用的设备,在此不做重点介绍。仅提醒注意以下事项。在使用洗车机洗车时,应做到:
1)仔细阅读说明书。
2)检查车辆导轨两端的安全挡块确保安装正确可靠。
3)车辆停放于两导轨间的中心部位。
4)关好车门窗。
5)收下天线,固定刮水器。
6)合上后视镜,若其松动,则用胶带固定。
7)带蜡清洗,要将车窗玻璃尤其是前风窗玻璃用塑料薄膜遮盖。
8)发动机熄火,变速杆挂停车档并拉上驻车制动。
2.手工洗车
手工洗车是我们重点介绍的项目,作为专业美容店,手工洗车是主要推荐的汽车清洗方法。
(1)场地规划
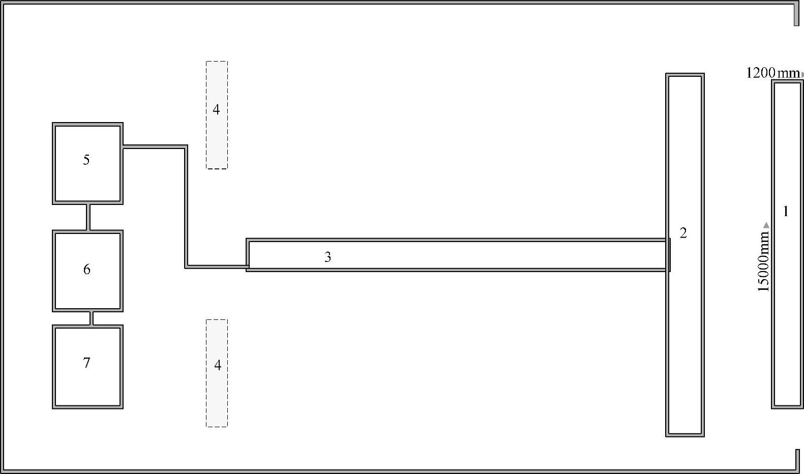
良好的洗车场所中最重要的是给排水系统设施的合理安排,如图2-1所示。
图2-1 洗车车间排水布局图(带循环水池)
1—水封沟 2—挡水沟 3—集水沟 4—限位挡 5—淤泥池 6—沉淀地 7—清水池
1)水封沟:设置在洗车间进口处,作用是防止清洗后的车辆将车身残留的滴水大量带出,洒落在擦车场地。
2)挡水沟:设置在离洗车间进口处80~100cm外端,作用是搜集洗车过程中的污水。防止污水外溢。
3)集水沟:又叫淤泥沟,淤泥沟的设计是房屋排水系统中最重要的部分,因为清洗车辆时所有的淤泥要进入淤泥沟,通过淤泥沟的过滤避免下水系统堵塞。
4)限位挡:限位挡的作用主要是限制车辆停放位置,防止车辆起动时因无意操作造成的窜车,导致人身伤害,设备损坏。
5)淤泥池:淤泥池是专为循环水系统设计的污水储藏池。污水在这里进行一次沉淀,将较大的泥沙沉淀过滤,后溢流到沉淀池。
6)沉淀池:沉淀池是进行污水二次沉淀的地方,通过沉淀池的污水在这里经过化学处理,即加入沉淀剂(明矾)进行化学沉淀后溢流到清水池。
7)清水池:清水池的水是经过化学处理后的清水。此时水中还是含有大量的脏污物质,通过水泵将清水池中的清水泵入到循环水设备中,经过两级石英过滤,一至二级活性炭过滤,与一级精滤和最后的臭氧还原,就可以达到洗车用水标准。
(2)洗车设备
车辆清洗机分为专业与非专业两种,专业型车辆清洗机为三相电源供电,非专业清洗机则为两相电源供电。专业型清洗机压力可调范围大,水流喷射形状可调,机型附属选装件多,可组合成多种形式喷枪,适用于各种车辆清洗。例如黑猫系列、鲸鱼系列车辆高压清洗机等。
1)机身
高压清洗机机身上的部件有电源线、水管、出水管、电源开关、机油加注口、压力表、压力调节阀等(例如鲸鱼JYCC115型、JYCC0815型、黑猫360、黑猫270、拓龙QL-380型等)。有的机身上有水温感应管、温度调节开关、燃料加注口等(例如洁士130型、FA-SA150型等),这属于冷热水两用清洗机,一般都是进口设备。还有的高压清洗机,用于野外操作,配备动力源,如柴油发电机等。
2)附属部件
① 出水管及高压清洗枪:此部件与机身的出水口相连。高压清洗枪有的长,有的短(拓龙QL-380);有的有备用枪(鲸鱼JYCC1115型等),有的没有;有的扇面可调,有的扇面不可调。
② 进水管:在有的设备上无进水管,需用户自己选配,一般是直接与水源相接。在进水管的末端有滤网,主要是滤除水中大的杂质和脏物,进水管与机身的进水口相连接。
3)高压清洗机的连接
用户需根据具体设备的说明书进行连接,以说明书为准。下面简要地介绍两种高压清洗机的连接方法。(https://www.chuimin.cn)
① 鲸鱼JYCCIH5型
a.技术参数
额定电压:380V/50Hz
额定压力:11MPa
额定功率:3.0kW
许用压力:14MPa
理论流量:15L/min
防护等级:1p×5
b.机身
拆下工程塑料护罩,可以看见电源上有一熔丝开关。使用时这一熔丝开关必须闭合,它是一种保险装置,与家用的安全保护器大致相同;还可以看到机油加注口(在柱塞泵上端)、压力表(柱塞泵侧)、进出水口(上出下进)以及压力调节阀(出水口连接端有一黑内六角螺栓)。
c.连接
需要连接的只有两根管:出水管(带高压枪)连接在出水口上(上面的口);进水管(带滤网)连接在进水口上(下面的口),将滤网放入盛水的容器中,再将接口的螺栓联接好。
这样,便将鲸鱼JYCC1115型高压清洗机连接完毕。
② 洁士130型冷热水两用高压清洗机
a.机身
在机身上部有调温旋扭、电源开关、电源线,机身前下部从左至右为出水口、安全口、进水口以及高压清洗机出水管、机身后部底端有水温感应口(内连接铜丝切口)、安全排气口,在机身后部上端有一加燃料口,机身上端有一散热孔,以及工程塑料面罩螺钉。
b.连接
将出水管一端与出水口相连接(左一口),另一端与高压枪相连接;将进水管(自备)一端与进水口(左口)相连接,另一端与水源相连接。
这样,便将洁士130型冷热水两用高压清洗机连接完毕。
4)专业高压车辆清洗机使用注意事项
① 机油加注。根据机型要求不同,加注相应型号的润滑油,润滑油加注量各种机型都有明确规定。要注意,第一次加油后工作25~45h内要换机油,因为新的高压泵有磨合期,在磨合期后要将旧机油换掉。
② 电源线连接与制作保护开关。选择三相电动机作为动力源时需要对洗车机电源控制部分进行改装。首先要把机身控制开关处于常开状态,然后用防水开关来控制洗车机运行与停止。如果有条件,可以增设漏电保护开关。
③ 管路密封。检查所有的管路密封圈,防止因密封不严造成的压力损失。
④ 电动机防水。由于使用的是三相电动机,所以电动机的防水措施一定要完备,防止因电动机受潮影响使用。
⑤ 供水设施定量与压力调节(低于7kPa)。专业洗车机需要固定的蓄水池,不论使用任何形式的蓄水池,其容量都应大于100L,防止因供水不足造成的多种影响。
调节压力调节阀,使供水压力达到6.5~7.5kPa。出水压力应大于5.5kPa,但不能过高,因为过高的出水压力一方面会击伤车辆涂层,另一方面会增加洗车机水泵的负荷,缩短洗车机寿命。
⑥ 加装二级滤网,防止压力调节阀过脏而卡住。在水源不能保证完全干净的情况下,在洗车机进水口处增加一道纱布滤网是比较有效的措施。这样可以防止洗车机零部件过早损坏,延长洗车机使用寿命;同时可以防止压力调节阀因过脏而卡住,不能起到压力调节的作用。
⑦ 部分管路在允许的条件下进行固定处理,防止车轮碾压。洗车机的高压水管是怕车轮碾压的,一旦碾压,很容易使钢丝断裂,造成漏水,所以在条件允许的情况下最好还是将多余的高压水管作固定处理。
5)车辆清洗机简易故障判断见表2-1所示。
表2-1 常见故障原因简表
6)洗车机及副件的选择 根据清洗工作的不同选择洗车机附件是很有讲究的。如果是面积比较窄小,专业清洗高档轿车的工作场地,可以选择短喷枪作为主要施工工具;场地比较开阔以大型车辆(包括越野车辆)为主要清洗对象的工作场地,应该选用长喷枪(带延长杆的喷水器)作为主要施工工具。
当城市比较脏(公路不发达或车辆携带泥土比较多)时,应选用出水压力大、喷水形状可以调节的(柱形、扇形互换)喷枪;当城市比较干净,车身污染多数为浮土的情况时,应选择以扇形喷洒为主的喷枪。
夏季以清洗大型长途货车、客车为主的清洗场地应选用带刷头的长喷枪,方便清洁车身与玻璃上的虫尸。
相关文章
据统计,每年落入擦车族手中的擦车费就有三个亿。根据调查,目前市场上许多汽车美容店处于无专业正规培训、无专业名牌产品、无专业机械设备、无服务质量保证的四无状况。但随着汽车美容护理市场的不断规范和人们消费意识的提高,伪劣产品将无处立足,无专业服务的汽车美容店若不改变现状也将会被淘汰。如何在汽车美容护理业立足、发展并壮大,已成为每一个业内人士所关注的问题。......
2025-09-30
铝基钎料主要以铝硅合金为基,还可加入铜、锌、镁等元素以满足工艺性能的要求。铝基钎料适用于火焰钎焊、炉中钎焊、盐浴钎焊和真空钎焊等工艺方法。表3-3-12 铝基钎料的分类、型号、形状及熔化温度铝基钎料的化学成分应符合表3-3-13的规定。表3-3-13 铝基钎料的化学成分......
2025-09-29
随着我国汽车工业的迅速发展和汽车保有量的不断增加,一个新兴的行业——汽车美容装饰悄然兴起,并且已遍及全国。所谓汽车装饰则是指通过加装附件,提高汽车的安全舒适性,使汽车美观并具有个性。围绕这一目的,进行的一系列工作,就是许多人眼里笼统意义的汽车美容。而今天的汽车美容由于借鉴了人类“美容养颜”的基本思想,被赋予新的仿生学内涵,正逐步形成现代意义的“汽车美容”。......
2025-09-30
从国际汽车市场及汽车养护用品市场发展的情况来看,以养护代替繁琐的修理早已是发达国家的汽车服务模式。汽车保养业已经形成了一套成熟而完善的服务和技术质量经营体系,成为了一个有着巨大市场和丰厚利润的行业。汽车的平时清洁护理和定期美容保养,必然成为人们日常的消费内容。许多有车族都养成了在参加婚庆等重要聚会前将爱车进行美容的习惯。这就使汽车美容护理业的存在和发展更具备了市场。......
2025-09-30
为了尽快使燃油系统建立起油压,可以将点火开关置于ON位,稍停,等待燃油泵运转5s以上,再将点火开关转至OFF位。如果上述操作无效,说明燃油泵泄漏严重,不能保持足够的残余油压,需要进行修理或更换。②卸除燃油系统高压的方法。可以通过拔下燃油泵继电器的熔断器,对电动燃油泵断电,然后将点火开关置于ST位,起动发动机3次,以消耗输油管内的部分燃油,达到降低系统燃油压力的目的。......
2025-09-30
柴油燃油压缩为很高的压力,这会影响燃油喷射量,因此这在喷射调节系统中成为应考虑的重要因素。另外,燃油喷射量的改变会带来废气排放量和输出功率的变化。在传统的直列式和分配式燃油喷射系统中,喷射时间以输送时间为依据决定。......
2025-09-29
轮胎压力监测系统监测各轮胎中的气压,并与之前存储的规定气压作比较,如果发生相对压力损失,则向驾驶人传送警告信息。奔驰车系轮胎压力监测系统控制框图如图5-21所示。在行驶过程中,轮胎压力监测系统不断监测所有转动车轮的轮胎气压。驾驶人会在仪表板的多功能显示屏上或者通过轮胎压力监测器警告灯接收反馈信息。......
2025-09-30
自动变速器型号代表的主要内容如下。下面将几个主要公司的自动变速器具体型号含义举例说明。左起第二位阿拉伯数字代表该自动变速器前进档的个数。丰田公司近年来升级版本的自动变速器型号有A750E、A760、761E和AA80E等。......
2025-09-30
相关推荐